
MB15型进口板型可拆式板式换热器
更新时间:2016-12-14 13:38:07点击次数:1116次
相关介绍
MB15进口板型可拆式板式换热器
|
MB15进口板型板式换热器是一种新型的节能热交换装置,具有传热效果高、结构紧凑、占地面积小、 操作简便,清洗、拆卸、维护方便,容易改变换热面积或流程组合等优点。 板片人字形波纹,介质流动形成湍流状态,粘胶式密封垫片。传热系数能高达2000~6000 W/m2.℃ 左右。 本产品适用于化工、机械、食品、饮料、医药、住宅供暖、供热水、空调等部门。 |
|
|
|
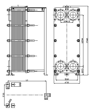
MB15型板式换热器主要技术参数:
| 最大组装面积 | 150 m2 |
| 最大水处理量 | 380 m3/h |
| 管径 | DN150 |
| 最大设计压力 | 1.6 Mpa |
| 最大设计温度 | 180 ℃ |
| 流道截面积 | 0.00117 m2 |
| 波纹深度 | 2。6 mm |
| 板片尺寸 | 1502×500 mm |
| 中心距 | 298.5×1294 mm |
| 传热系数 | 2000-6000 W/m2·℃ |
MB15型板式换热器外形尺寸:
| 长度(mm) | 换 热 面 积 (m2) | ||||
| 30 | 60 | 90 | 120 | 150 | |
| L | 板片数 x 3.1mm | ||||
| L1 | 840 | 1040 | 1240 | 1540 | 1840 |
MB15型板式换热器设备外形尺寸:(仅供参考)